气浮机设备处理原理
气浮机设备处理原理:
气浮机设备是一种去除各种工业和市政污水中的固体悬浮物、油脂及各种胶状物的设备,也有使水中表面活性剂附着在气泡表面上浮,从而与水分离,称为泡沫气浮法。
气浮主要依靠悬浮物表面有亲水和憎水之分。憎水性颗粒表面容易附着气泡,因而可用气浮法。亲水性颗粒用适当的化学药品处理后可以转为憎水性。水处理中的气浮法,常用混凝剂使胶体颗粒结成为絮体,絮体具有网络结构,容易截留气泡,从而提高气浮效率。再者,水中如有表面活性剂(如洗涤剂)可形成泡沫,也有附着悬浮颗粒一起上升的作用。

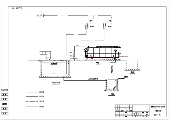
气浮机设备处理过程:
溶气罐产生溶气水,溶气水通过释放器减压释放到待处理的水中。溶解在水中的空气从水中释放出来,形成20-40um的微小细泡,微气泡同污水中的悬浮物结合,使悬浮物比重小于水,并逐渐浮到水面形成浮渣。水面上备有刮板系统,将浮渣刮入污泥池。清水从下部经溢流槽进入清水池。
污水中的污染物分为溶解性有机物和非溶解性物质(即SS),溶解性有机物在一定条件下,可以转化为非溶液解性物质,污水处理的方法之一就是加入混凝剂和絮凝剂使大部分溶解性有机物转达化为非溶解性物质,再将全部或大部分非溶液解性物质(即SS)去除以达到净化污水的目的,而去除SS的主要方法就是利用气浮的方法。
气浮时向水中曝气,对去除水中的表面活性剂及臭味有明显的效果,同时由于曝气增加了水中的溶解氧,为后续处理提供了有利条件。


气浮机设备特点:
1.结构紧凑,占地面积小;
2.所产微气泡小而均匀;
3.性能优越,处理效果稳定可靠;
4.安装方便,操作简单,易于掌握;
5.浮渣浓度高,产泥量少,易于脱水;
6.出水效果好,投资少,见效快;
7.技术先进,设计合理,运行费用低等。


气浮机设备使用范围:
气浮机设备主要用于固—液或液—液分离。通过溶气和释放系统在水中产生大量的微细气泡,使其粘附于废水中密度与水接近的固体或液体微粒上,造成整体密度小于水的状态,并依靠浮力使其上升至水面,从而达到固—液或液—液分离的目的。在水处理领域气浮机应用于以下方面:
1、分离地表水中细小悬浮物,藻类等微聚体。
2、回收工业废水中有用物质,如造纸废水中纸浆等。
3、代替二沉池分离和浓缩水中污泥。



返回首页
电话
产品中心